grote baan 183
1650 BEERSEL
4
2
309 m2
19 a 89 ca
Grande maison de caractère à vendre à Beersel sur un magnifique terrain de 1989 m².
On accède à la propriété par une allée imposante et verdoyante.
En suivant le petit sentier dans le jardin avant, on arrive à la porte d’entrée qui s’ouvre sur un vaste hall.
À gauche de la maison se trouvent un bureau et une buanderie.
Le séjour se situe à droite du hall d’entrée. Il se distingue par une authentique cheminée ouverte et une vue imprenable sur le magnifique grand jardin verdoyant.
Le séjour donne accès à la cuisine, qui offre une vue sur le jardin avant. La cuisine dispose d’un accès indépendant vers l’extérieur.
À côté de la cuisine se trouvent deux grands garages. Il y a également plusieurs emplacements de parking devant les garages.
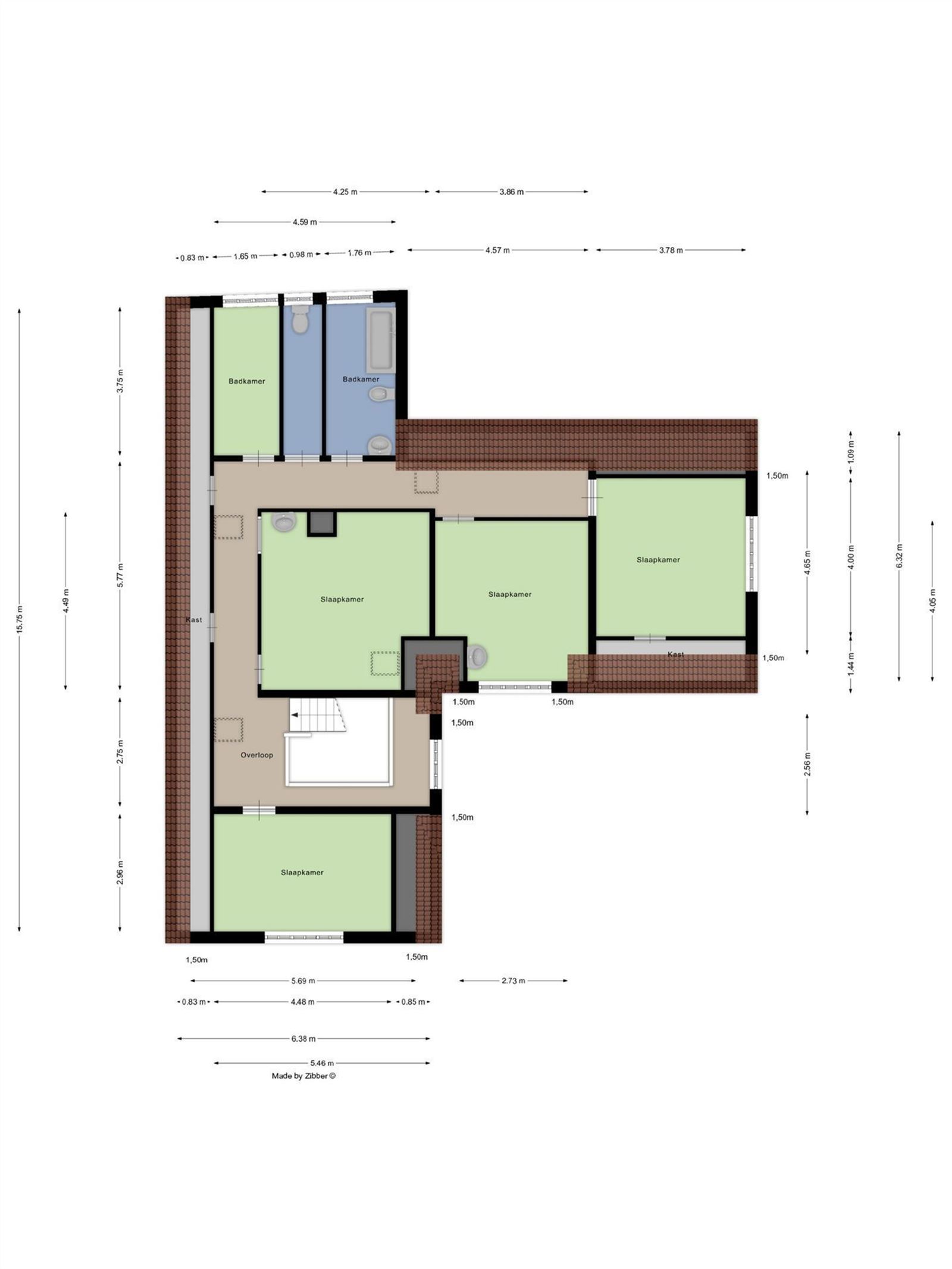
Au premier étage, vous trouverez quatre grandes chambres et deux salles de bains.
L’espace de rangement ne manque pas non plus, car la maison est entièrement sous-solée.
Atouts de la propriété :
- Grande surface habitable
- 4 chambres
- 2 salles de bains
- 2 garages + plusieurs emplacements extérieurs
- Intimité totale
- Magnifique jardin
Revenu cadastral
3.710 €
Nombre de salle(s) de bain
2
Garage(s)
2
Superficie nette
309 m²
Living
55 m²
Superficie terrain
19 a 89 ca
Année de construction
1979
Chauffage
Electrique direct
Exposition
Nord-ouest
Raccordement à l’eau
Oui
Droit de préemption possible
Non
Permis de bâtir obtenu
Oui
Citation pour infraction urbanistique
Pas applicable
Affectation
Zone rurale résidentielle
Type d'amiante
Amiante trouvé, mais désamiantage non obligatoire
Date de certificat d'amiante
2025-05-12 00:00:00
G-score
Classe A
P-score
Classe C
Code Unique
0003586563
EPC
684 kWh/m²/an
Prix
749.000 €
Revenu cadastral
3.710 €
Adresse
grote baan 183
1650 BEERSEL
Nombre de Chambre(s)
4 chr
Nombre de salle(s) de bain
2
Garage(s)
2
Superficie nette
309 m²
Living
55 m²
Superficie terrain
1989 m²
Année de construction
1979
Grande maison de caractère à vendre à Beersel sur un magnifique terrain de 1989 m².
On accède à la propriété par une allée imposante et verdoyante.
En suivant le petit sentier dans le jardin avant, on arrive à la porte d’entrée qui s’ouvre sur un vaste hall.
À gauche de la maison se trouvent un bureau et une buanderie.
Le séjour se situe à droite du hall d’entrée. Il se distingue par une authentique cheminée ouverte et une vue imprenable sur le magnifique grand jardin verdoyant.
Le séjour donne accès à la cuisine, qui offre une vue sur le jardin avant. La cuisine dispose d’un accès indépendant vers l’extérieur.
À côté de la cuisine se trouvent deux grands garages. Il y a également plusieurs emplacements de parking devant les garages.
Au premier étage, vous trouverez quatre grandes chambres et deux salles de bains.
L’espace de rangement ne manque pas non plus, car la maison est entièrement sous-solée.
Atouts de la propriété :
- Grande surface habitable
- 4 chambres
- 2 salles de bains
- 2 garages + plusieurs emplacements extérieurs
- Intimité totale
- Magnifique jardin
Revenu cadastral
3.710 €
Nombre de salle(s) de bain
2
Garage(s)
2
Superficie nette
309 m²
Living
55 m²
Superficie terrain
1989 m²
Année de construction
1979
Chauffage
Electrique direct
Exposition
Nord-ouest
Raccordement à l’eau
Oui
Droit de préemption possible
Non
Permis de bâtir obtenu
Oui
Citation pour infraction urbanistique
Pas applicable
Affectation
Zone rurale résidentielle
Type d'amiante
Amiante trouvé, mais désamiantage non obligatoire
Date de certificat d'amiante
2025-05-12 00:00:00
G-score
Classe A
P-score
Classe C
Code Unique
0003586563
EPC
684 kWh/m²/an

maison
appart
maison
maison
terrai
appart
appart
immeub
immeub
maison