Kluisstraat 30
1500 HALLE
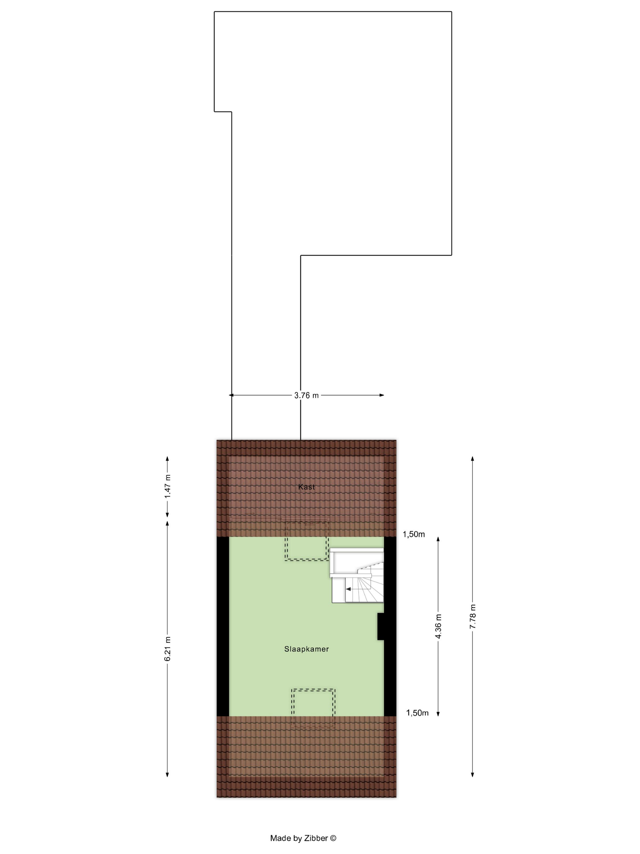
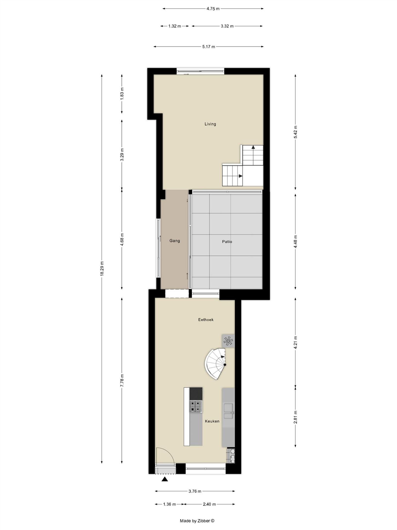
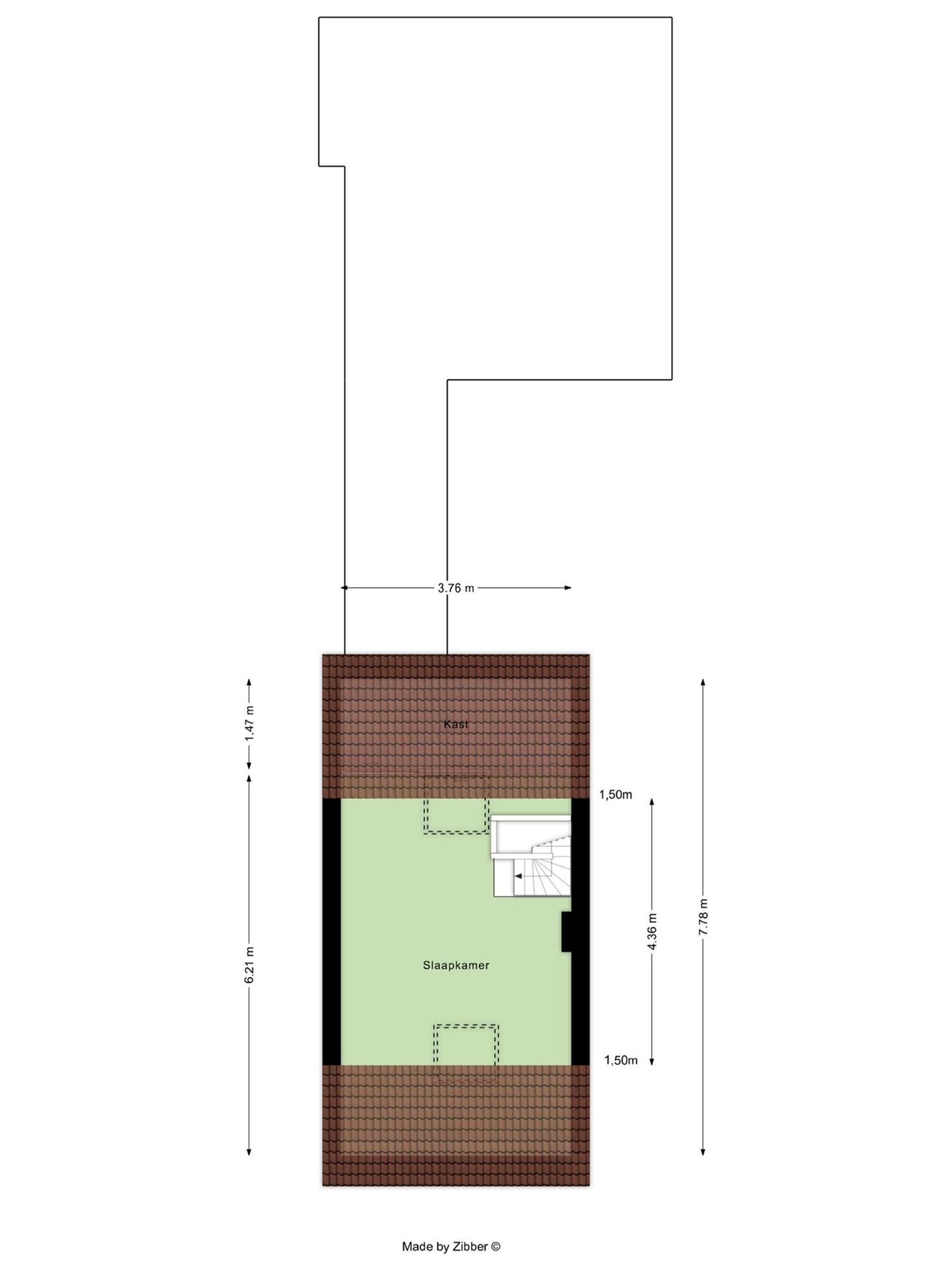
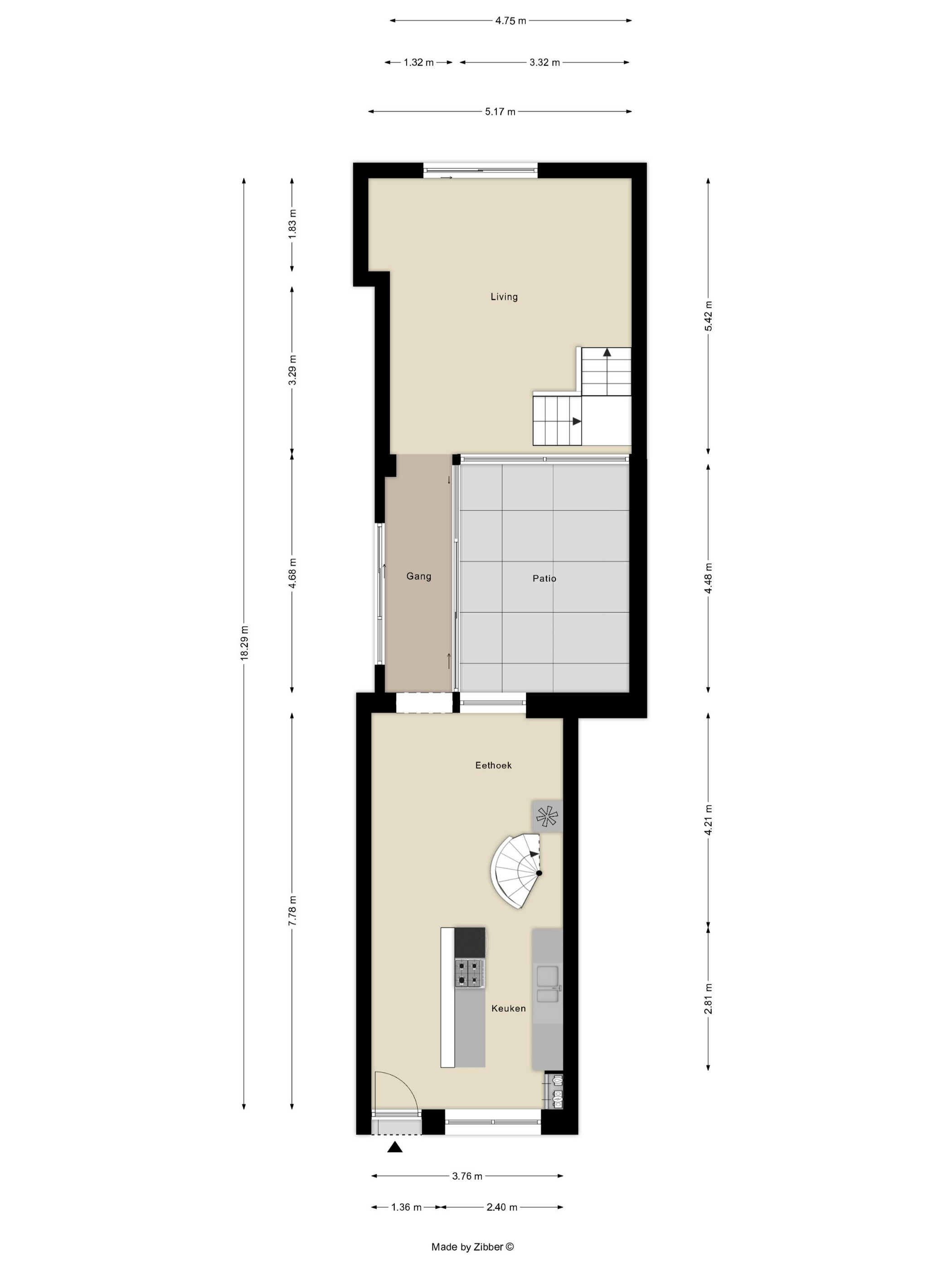
2
1
130 m2
123 m2
Gezellige en lichtrijke woning met stadstuin – nabij centrum Halle
Op zoek naar een charmante, instapklare woning met karakter en comfort? Ontdek deze knusse gezinswoning met 2 slaapkamers, bureauruimte en een gezellige stadstuin (Zuid-West) op wandelafstand van het centrum van Halle.
Binnen geniet je van een lichte en warme leefruimte, met aansluitend een volledig uitgeruste keuken die uitkijkt op een gezellige binnenkoer — volledig privé en zonder inkijk van buren.
De woning werd in 2004 grondig gerenoveerd en is vandaag energiezuinig (EPC-label C – 248 kWh/m²jaar), asbestveilig en met conforme elektriciteit.
Dankzij de centrale ligging woon je vlak bij winkels, scholen, het station van Halle en talloze wandeling- en sportmogelijkheden in het groen — op slechts enkele meters van de open velden.
Een ideale woning voor wie houdt van rust, gezelligheid en een praktische ligging dicht bij alles wat Halle te bieden heeft.
Kadastraal inkomen
€ 810
Aantal badkamers
1
Netto oppervlakte
130 m²
Living
28 m²
Grondoppervlakte
123 m²
Bouwjaar
1919
Verwarming
CV op gas
Orientatie Achtergevel
Zuidwest
Type dak
Zadeldak
Dakbedekking
pannen
Aansluiting aardgas
Ja
Aansluiting waterleiding
Ja
Keuken
Kasten met toestellen
Beglazing
Dubbel
Raamkozijn
alu
Comfort binnen
Dubbel glas, Parket
Voorkooprecht mogelijk
In aanvraag
Stedenbouwkundige vergunning verkregen
In aanvraag
Dagvaarding en herstelvordering
In aanvraag
Bestemming
In aanvraag
Afgebakend overstromingsgebied
Nee
Afgebakende oeverzone
Nee
Asbesttype
Geen asbest gevonden
Datum asbestattest
2025-10-29 00:00:00
G-score waterinfo
Klasse A
P-score waterinfo
Klasse A
Unieke code
20251029-0003720855-RES-1
EPC
228 kWh/m²/jaar
Contacteer ons voor meer informatie of een bezoek ter plaatse.
INFO / BEZOEK AANVRAGENPrijs
€ 379.000
Kadastraal inkomen
€ 810
Adres
Kluisstraat 30
1500 HALLE
Aantal slaapkamers
2
Aantal badkamers
1
Netto oppervlakte
130 m²
Living
28 m²
Grondoppervlakte
123 m²
Bouwjaar
1919
Gezellige en lichtrijke woning met stadstuin – nabij centrum Halle
Op zoek naar een charmante, instapklare woning met karakter en comfort? Ontdek deze knusse gezinswoning met 2 slaapkamers, bureauruimte en een gezellige stadstuin (Zuid-West) op wandelafstand van het centrum van Halle.
Binnen geniet je van een lichte en warme leefruimte, met aansluitend een volledig uitgeruste keuken die uitkijkt op een gezellige binnenkoer — volledig privé en zonder inkijk van buren.
De woning werd in 2004 grondig gerenoveerd en is vandaag energiezuinig (EPC-label C – 248 kWh/m²jaar), asbestveilig en met conforme elektriciteit.
Dankzij de centrale ligging woon je vlak bij winkels, scholen, het station van Halle en talloze wandeling- en sportmogelijkheden in het groen — op slechts enkele meters van de open velden.
Een ideale woning voor wie houdt van rust, gezelligheid en een praktische ligging dicht bij alles wat Halle te bieden heeft.
Kadastraal inkomen
€ 810
Aantal badkamers
1
Netto oppervlakte
130 m²
Living
28 m²
Grondoppervlakte
123 m²
Bouwjaar
1919
Verwarming
CV op gas
Orientatie Achtergevel
Zuidwest
Type dak
Zadeldak
Dakbedekking
pannen
Aansluiting aardgas
Ja
Aansluiting waterleiding
Ja
Keuken
Kasten met toestellen
Beglazing
Dubbel
Raamkozijn
alu
Comfort binnen
Dubbel glas, Parket
Voorkooprecht mogelijk
In aanvraag
Stedenbouwkundige vergunning verkregen
In aanvraag
Dagvaarding en herstelvordering
In aanvraag
Bestemming
In aanvraag
Afgebakend overstromingsgebied
Nee
Afgebakende oeverzone
Nee
Asbesttype
Geen asbest gevonden
Datum asbestattest
2025-10-29 00:00:00
G-score waterinfo
Klasse A
P-score waterinfo
Klasse A
Unieke code
20251029-0003720855-RES-1
EPC
228 kWh/m²/jaar

woning
showro
appart
appart
appart
appart
appart
appart
appart
garage