Sollenberg 47
1650 BEERSEL
4
2
268 m2
8 a 23 ca
Ruime en kwaliteitsvolle 4-gevelwoning te koop – Sollenberg 47, Beersel (Lot)
Ontdek deze prachtige, vrijstaande woning op een perceel van 8a23ca, gelegen in een rustige en groene buurt van Beersel. Deze woning combineert ruimte, licht en comfort met een hoogwaardig afwerkingsniveau.
Indeling & troeven:
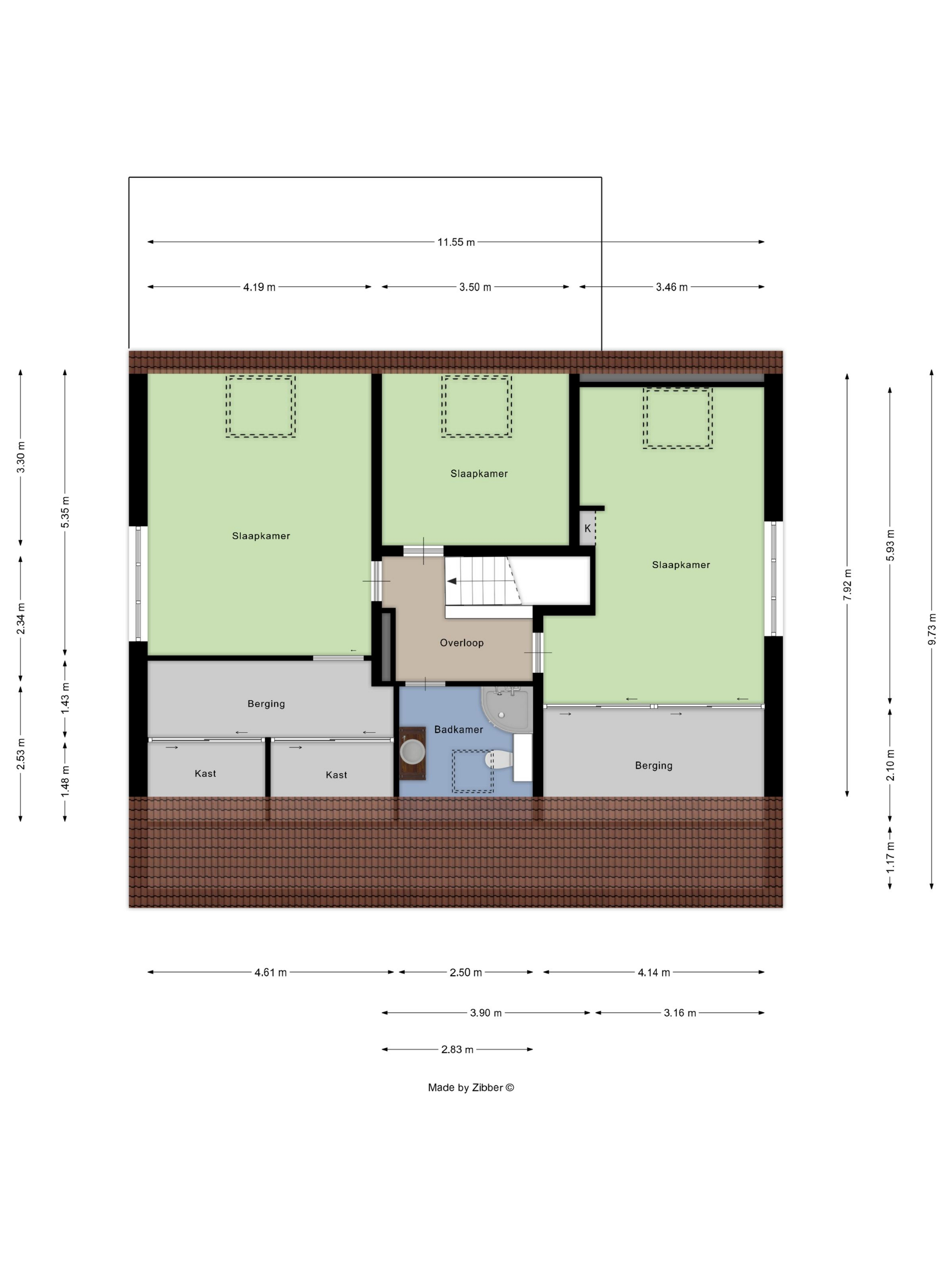
• Gezellige living (gashaard) en eetkamer (42m²) met open keuken — ideaal voor gezellige familiemomenten
• 4 ruime slaapkamers (22m², 20m², 15m² en 12m²) + extra bureauruimte of 5e slaapkamer
• 2 badkamers, modern en praktisch ingericht
• Aangenaam verwarmd terras met een prachtig panoramisch uitzicht en dynamische tuin
• Airco in de slaapkamers voor optimaal comfort het hele jaar door
• Ruimte voor 4 auto's & laadpaal aanwezig voor elektrische wagens
• Rustig gelegen, dichtbij winkels, scholen, openbaar vervoer (treinstation op minder dan 1km) en met vlotte verbindingen naar Brussel en Halle.
• Op kelderniveau: ruime bergingen en een extra keuken, perfect om te koken of te genieten op het grote hoofdterras
• EPC - label C (261 kWh/(m² jaar) - elektriciteit conform (mits toevoegen van schema's en situatieplannen) - asbestveilig
Deze woning biedt een perfecte balans tussen functionaliteit en gezelligheid — ideaal voor gezinnen die houden van ruimte, kwaliteit en rust.
Kadastraal inkomen
€ 2.695
Aantal badkamers
2
Netto oppervlakte
268 m²
Living
43 m²
Grondoppervlakte
8 a 23 ca
Bouwjaar
1978
Verwarming
CV op gas
Type dak
Zadeldak
Dakbedekking
pannen
Aansluiting aardgas
Ja
Aansluiting waterleiding
Ja
Keuken
Hyper-geïnstalleerd
Beglazing
Dubbel
Raamkozijn
alu
Comfort binnen
Airco, Dubbel glas, Living parket
Voorkooprecht mogelijk
Nee
Stedenbouwkundige vergunning verkregen
Ja
Dagvaarding en herstelvordering
Niet van toepassing
Bestemming
In aanvraag
Afgebakend overstromingsgebied
Nee
Datum asbestattest
2025-10-30 00:00:00
G-score waterinfo
Klasse A
P-score waterinfo
Klasse B
Unieke code
20251029-0003722054-RES-1
EPC
261 kWh/m²/jaar
Contacteer ons voor meer informatie of een bezoek ter plaatse.
INFO / BEZOEK AANVRAGENPrijs
€ 785.000
Kadastraal inkomen
€ 2.695
Adres
Sollenberg 47
1650 BEERSEL
Aantal slaapkamers
4
Aantal badkamers
2
Netto oppervlakte
268 m²
Living
43 m²
Grondoppervlakte
823 m²
Bouwjaar
1978
Ruime en kwaliteitsvolle 4-gevelwoning te koop – Sollenberg 47, Beersel (Lot)
Ontdek deze prachtige, vrijstaande woning op een perceel van 8a23ca, gelegen in een rustige en groene buurt van Beersel. Deze woning combineert ruimte, licht en comfort met een hoogwaardig afwerkingsniveau.
Indeling & troeven:
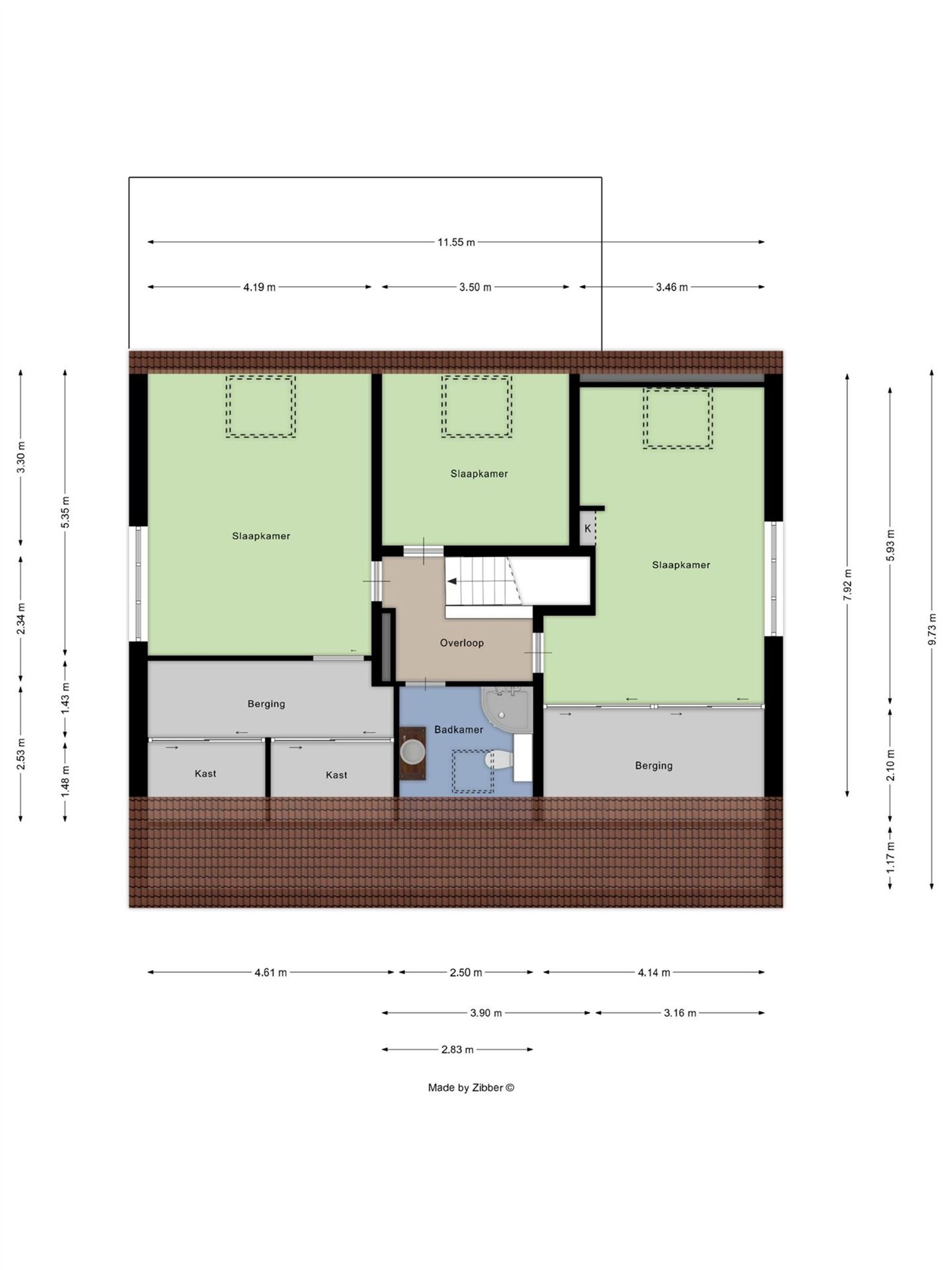
• Gezellige living (gashaard) en eetkamer (42m²) met open keuken — ideaal voor gezellige familiemomenten
• 4 ruime slaapkamers (22m², 20m², 15m² en 12m²) + extra bureauruimte of 5e slaapkamer
• 2 badkamers, modern en praktisch ingericht
• Aangenaam verwarmd terras met een prachtig panoramisch uitzicht en dynamische tuin
• Airco in de slaapkamers voor optimaal comfort het hele jaar door
• Ruimte voor 4 auto's & laadpaal aanwezig voor elektrische wagens
• Rustig gelegen, dichtbij winkels, scholen, openbaar vervoer (treinstation op minder dan 1km) en met vlotte verbindingen naar Brussel en Halle.
• Op kelderniveau: ruime bergingen en een extra keuken, perfect om te koken of te genieten op het grote hoofdterras
• EPC - label C (261 kWh/(m² jaar) - elektriciteit conform (mits toevoegen van schema's en situatieplannen) - asbestveilig
Deze woning biedt een perfecte balans tussen functionaliteit en gezelligheid — ideaal voor gezinnen die houden van ruimte, kwaliteit en rust.
Kadastraal inkomen
€ 2.695
Aantal badkamers
2
Netto oppervlakte
268 m²
Living
43 m²
Grondoppervlakte
823 m²
Bouwjaar
1978
Verwarming
CV op gas
Type dak
Zadeldak
Dakbedekking
pannen
Aansluiting aardgas
Ja
Aansluiting waterleiding
Ja
Keuken
Hyper-geïnstalleerd
Beglazing
Dubbel
Raamkozijn
alu
Comfort binnen
Airco, Dubbel glas, Living parket
Voorkooprecht mogelijk
Nee
Stedenbouwkundige vergunning verkregen
Ja
Dagvaarding en herstelvordering
Niet van toepassing
Bestemming
In aanvraag
Afgebakend overstromingsgebied
Nee
Datum asbestattest
2025-10-30 00:00:00
G-score waterinfo
Klasse A
P-score waterinfo
Klasse B
Unieke code
20251029-0003722054-RES-1
EPC
261 kWh/m²/jaar

woning
woning
woning
appart
woning
woning
woning
woning
appart
appart