Alsembergsesteenweg 115
1501 BUIZINGEN
4
1
116 m2
2 a 65 ca
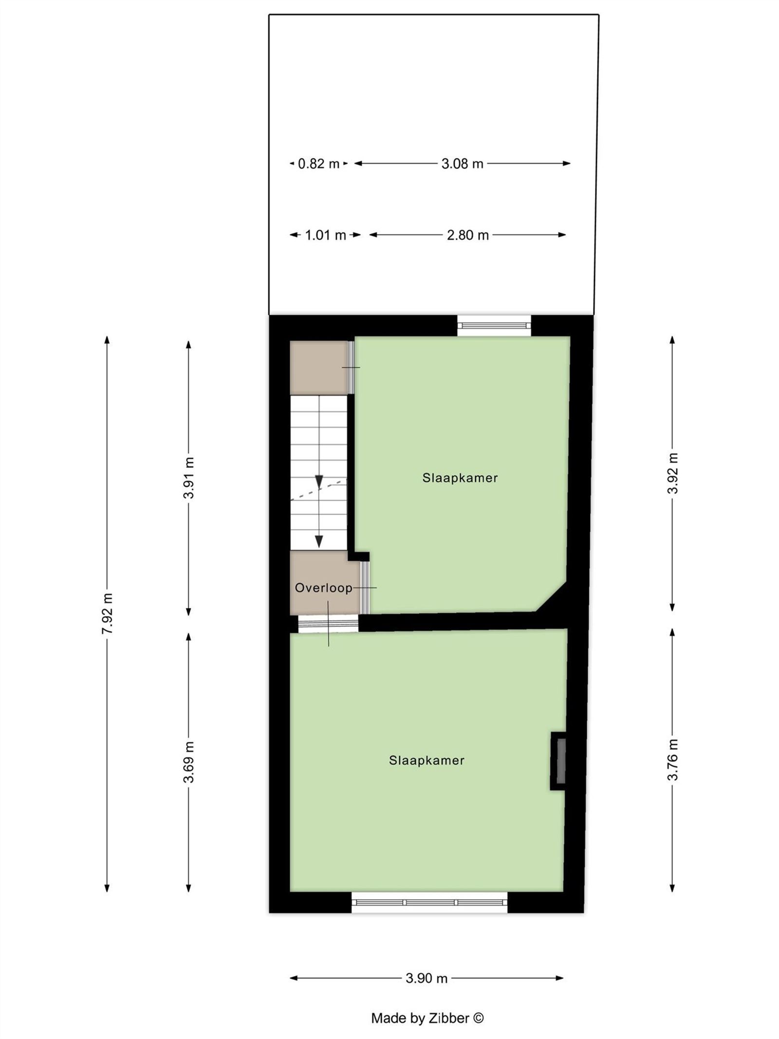
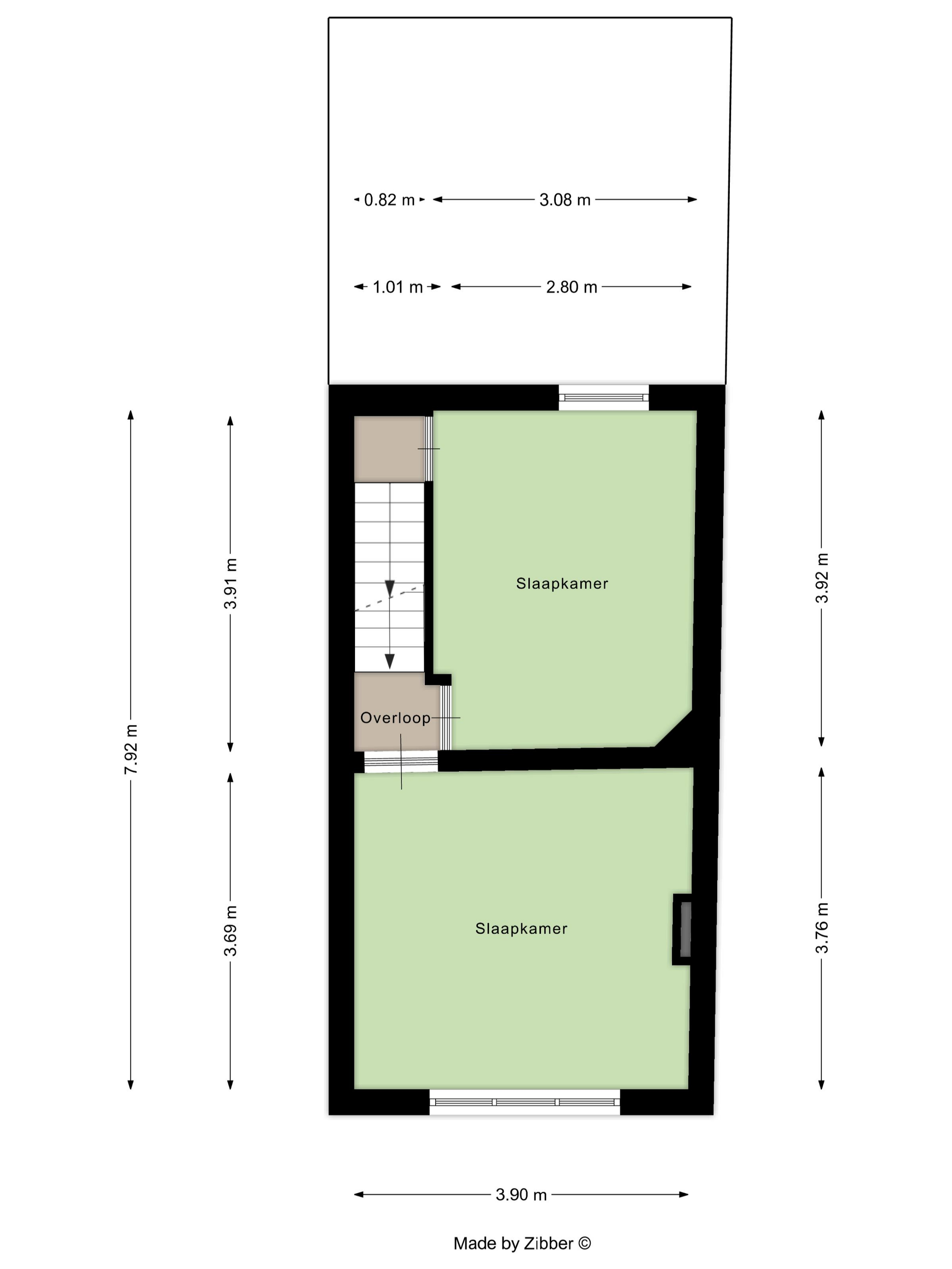
Volledig gerenoveerde woning met 4 slaapkamers & ruime tuin te Buizingen (Halle). De woning omvat op de gelijkvloerse verdieping: ruime living (30m²), ingerichte keuken, douchekamer, toilet & zeer ruime zuid-gerichte tuin. Op de 1ste en 2de verdieping: 2 slaapkamers (12m²/15m²). De woning heeft ook een kelder. Grote troeven van deze instapklare woning die volledig werd gerenoveerd zijn de aangename tuin, het volledig nieuwe geïsoleerde dak en de nabijheid van alle faciliteiten. C.V. op gas. EPC: Klasse C - 286 kWh/m². De woning is gelegen nabij winkels, scholen, openbaar vervoer en belangrijke invalswegen. Mis deze opportuniteit zeker niet en neem contact met ons op!
Kadastraal inkomen
€ 473
Aantal badkamers
1
Netto oppervlakte
116 m²
Living
30 m²
Grondoppervlakte
2 a 65 ca
Bouwjaar
1931
Verwarming
CV op gas
Orientatie Achtergevel
Zuidwest
Type dak
Zadeldak
Dakbedekking
pannen
Aansluiting aardgas
Ja
Aansluiting waterleiding
Ja
Keuken
Volledig ingebouwd
Beglazing
Dubbel
Raamkozijn
pvc
Voorkooprecht mogelijk
Nee
Stedenbouwkundige vergunning verkregen
Ja
Dagvaarding en herstelvordering
Geen rechterlijke herstelmaatregel of bestuurlijke maatregel opgelegd
Bestemming
Woongebied
Risicozone voor overstromingen
Nee
Afgebakend overstromingsgebied
Nee
Afgebakende oeverzone
Nee
G-score waterinfo
Klasse D
P-score waterinfo
Klasse D
Unieke code
20230519-00028962700-RES-1
EPC
286 kWh/m²/jaar
Contacteer ons voor meer informatie of een bezoek ter plaatse.
INFO / BEZOEK AANVRAGENPrijs
€ 320.000
Kadastraal inkomen
€ 473
Adres
Alsembergsesteenweg 115
1501 BUIZINGEN
Aantal slaapkamers
4
Aantal badkamers
1
Netto oppervlakte
116 m²
Living
30 m²
Grondoppervlakte
265 m²
Bouwjaar
1931
Volledig gerenoveerde woning met 4 slaapkamers & ruime tuin te Buizingen (Halle). De woning omvat op de gelijkvloerse verdieping: ruime living (30m²), ingerichte keuken, douchekamer, toilet & zeer ruime zuid-gerichte tuin. Op de 1ste en 2de verdieping: 2 slaapkamers (12m²/15m²). De woning heeft ook een kelder. Grote troeven van deze instapklare woning die volledig werd gerenoveerd zijn de aangename tuin, het volledig nieuwe geïsoleerde dak en de nabijheid van alle faciliteiten. C.V. op gas. EPC: Klasse C - 286 kWh/m². De woning is gelegen nabij winkels, scholen, openbaar vervoer en belangrijke invalswegen. Mis deze opportuniteit zeker niet en neem contact met ons op!
Kadastraal inkomen
€ 473
Aantal badkamers
1
Netto oppervlakte
116 m²
Living
30 m²
Grondoppervlakte
265 m²
Bouwjaar
1931
Verwarming
CV op gas
Orientatie Achtergevel
Zuidwest
Type dak
Zadeldak
Dakbedekking
pannen
Aansluiting aardgas
Ja
Aansluiting waterleiding
Ja
Keuken
Volledig ingebouwd
Beglazing
Dubbel
Raamkozijn
pvc
Voorkooprecht mogelijk
Nee
Stedenbouwkundige vergunning verkregen
Ja
Dagvaarding en herstelvordering
Geen rechterlijke herstelmaatregel of bestuurlijke maatregel opgelegd
Bestemming
Woongebied
Risicozone voor overstromingen
Nee
Afgebakend overstromingsgebied
Nee
Afgebakende oeverzone
Nee
G-score waterinfo
Klasse D
P-score waterinfo
Klasse D
Unieke code
20230519-00028962700-RES-1
EPC
286 kWh/m²/jaar

woning
woning
woning
woning
bouwgr
woning
bouwgr
bouwgr
kantoo
woning