Bergensesteenweg 28
1600 SINT-PIETERS-LEEUW
2
1
456 m2
Prachtig duplex-appartement met grote gelijkvloerse handelsruimte op een perceel van 571m² te Sint-Pieters-Leeuw.
Deze unieke eigendom biedt een harmonieuze combinatie van moderne elegantie en praktische luxe.
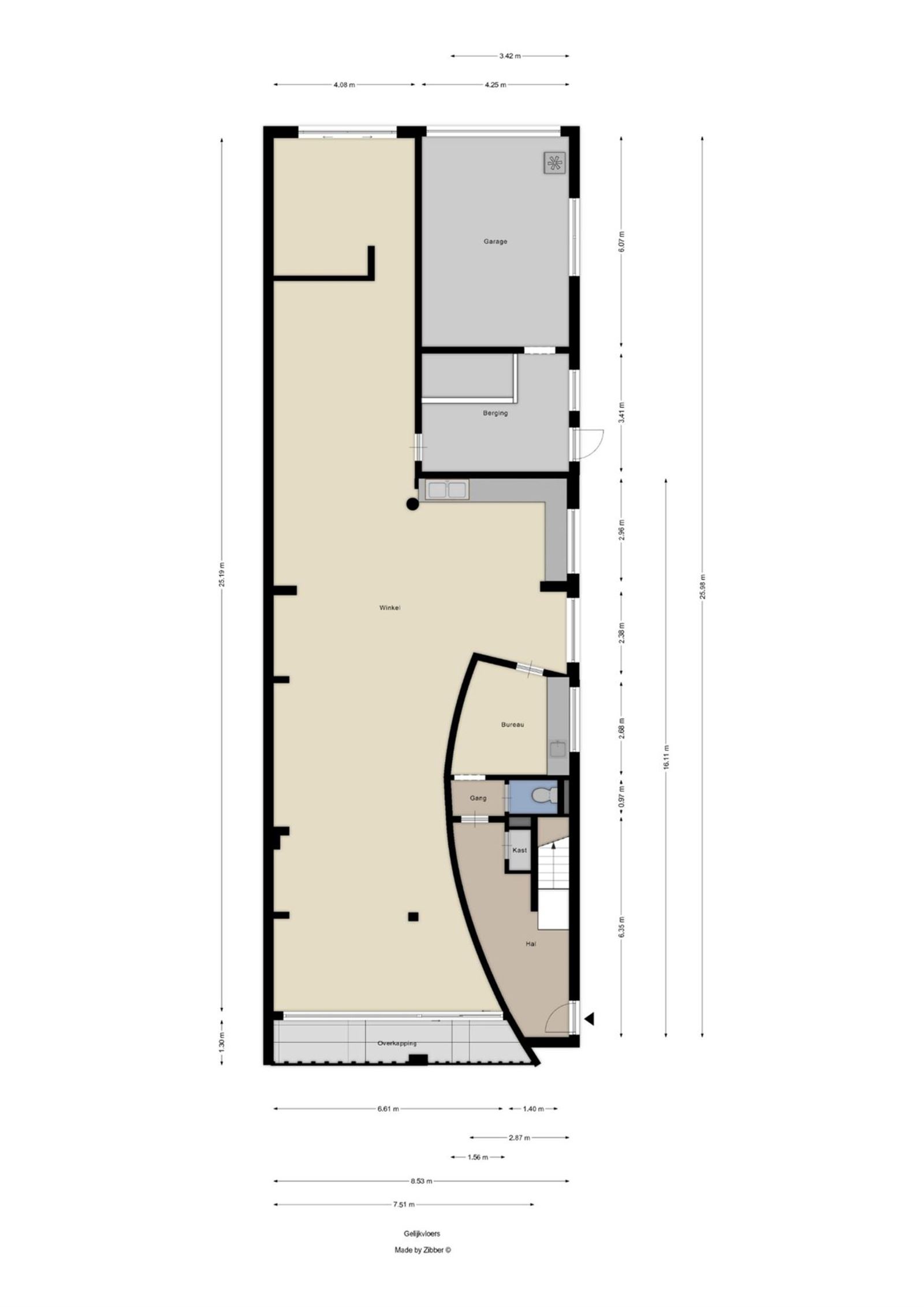
Het gelijkvloers heeft een grote winkelruimte van +/- 130 m², bureau, berging, wc.
Het duplex-appartement beschikt over twee stijlvolle slaapkamers.
De zorgvuldig ontworpen badkamer straalt een gevoel van sereniteit en comfort uit.
Een van de opvallende kenmerken is de ruime woon- en eetkamer met veel natuurlijk licht en een verfijnde afwerking en het prachtige zéér grote dakterras (65m²).
De moderne keuken is een droom voor iedere kookliefhebber, voorzien van alle benodigde apparatuur en werkruimte.
Daarnaast is er veel parkeerruimte met 1 inpandige garage en 3 garageboxen.
Kadastraal inkomen
€ 3.633
Aantal badkamers
1
Garage
4
Netto oppervlakte
456 m²
Living
54 m²
Grondoppervlakte
571 m²
Bouwjaar
1972
Verwarming
CV op gas
Orientatie Achtergevel
West
Aansluiting waterleiding
Ja
Beglazing
Dubbel + hoogrendements
Raamkozijn
alu
Voorkooprecht mogelijk
Nee
Stedenbouwkundige vergunning verkregen
Ja
Dagvaarding en herstelvordering
Geen rechterlijke herstelmaatregel of bestuurlijke maatregel opgelegd
Bestemming
Woongebied
Asbesttype
Geen asbest gevonden
Datum asbestattest
2025-04-03 00:00:00
G-score
Klasse A
P-score
Klasse A
Unieke code
3558681
EPC
205 kWh/m²/jaar
Contacteer ons voor meer informatie of een bezoek ter plaatse.
INFO / BEZOEK AANVRAGEN2
1
456 m2
Bergensesteenweg 28
1600 SINT-PIETERS-LEEUW
Prijs
€ 880.000
Kadastraal inkomen
€ 3.633
Adres
Bergensesteenweg 28
1600 SINT-PIETERS-LEEUW
Aantal slaapkamers
2
Aantal badkamers
1
Garage
4
Netto oppervlakte
456 m²
Living
54 m²
Grondoppervlakte
571 m²
Bouwjaar
1972
Prachtig duplex-appartement met grote gelijkvloerse handelsruimte op een perceel van 571m² te Sint-Pieters-Leeuw.
Deze unieke eigendom biedt een harmonieuze combinatie van moderne elegantie en praktische luxe.
Het gelijkvloers heeft een grote winkelruimte van +/- 130 m², bureau, berging, wc.
Het duplex-appartement beschikt over twee stijlvolle slaapkamers.
De zorgvuldig ontworpen badkamer straalt een gevoel van sereniteit en comfort uit.
Een van de opvallende kenmerken is de ruime woon- en eetkamer met veel natuurlijk licht en een verfijnde afwerking en het prachtige zéér grote dakterras (65m²).
De moderne keuken is een droom voor iedere kookliefhebber, voorzien van alle benodigde apparatuur en werkruimte.
Daarnaast is er veel parkeerruimte met 1 inpandige garage en 3 garageboxen.
Kadastraal inkomen
€ 3.633
Aantal badkamers
1
Garage
4
Netto oppervlakte
456 m²
Living
54 m²
Grondoppervlakte
571 m²
Bouwjaar
1972
Verwarming
CV op gas
Orientatie Achtergevel
West
Aansluiting waterleiding
Ja
Beglazing
Dubbel + hoogrendements
Raamkozijn
alu
Voorkooprecht mogelijk
Nee
Stedenbouwkundige vergunning verkregen
Ja
Dagvaarding en herstelvordering
Geen rechterlijke herstelmaatregel of bestuurlijke maatregel opgelegd
Bestemming
Woongebied
Asbesttype
Geen asbest gevonden
Datum asbestattest
2025-04-03 00:00:00
G-score
Klasse A
P-score
Klasse A
Unieke code
3558681
EPC
205 kWh/m²/jaar
