Ternatstraat 44
1740 TERNAT
4
1
211 m2
Deze woning combineert een goede en aangename woonomgeving met een uitstekende bereikbaarheid. Op slechts enkele minuten wandelen vind je het station, en dankzij de nabijgelegen invalswegen geniet je van een vlotte verbinding richting naar de omliggende gemeenten.
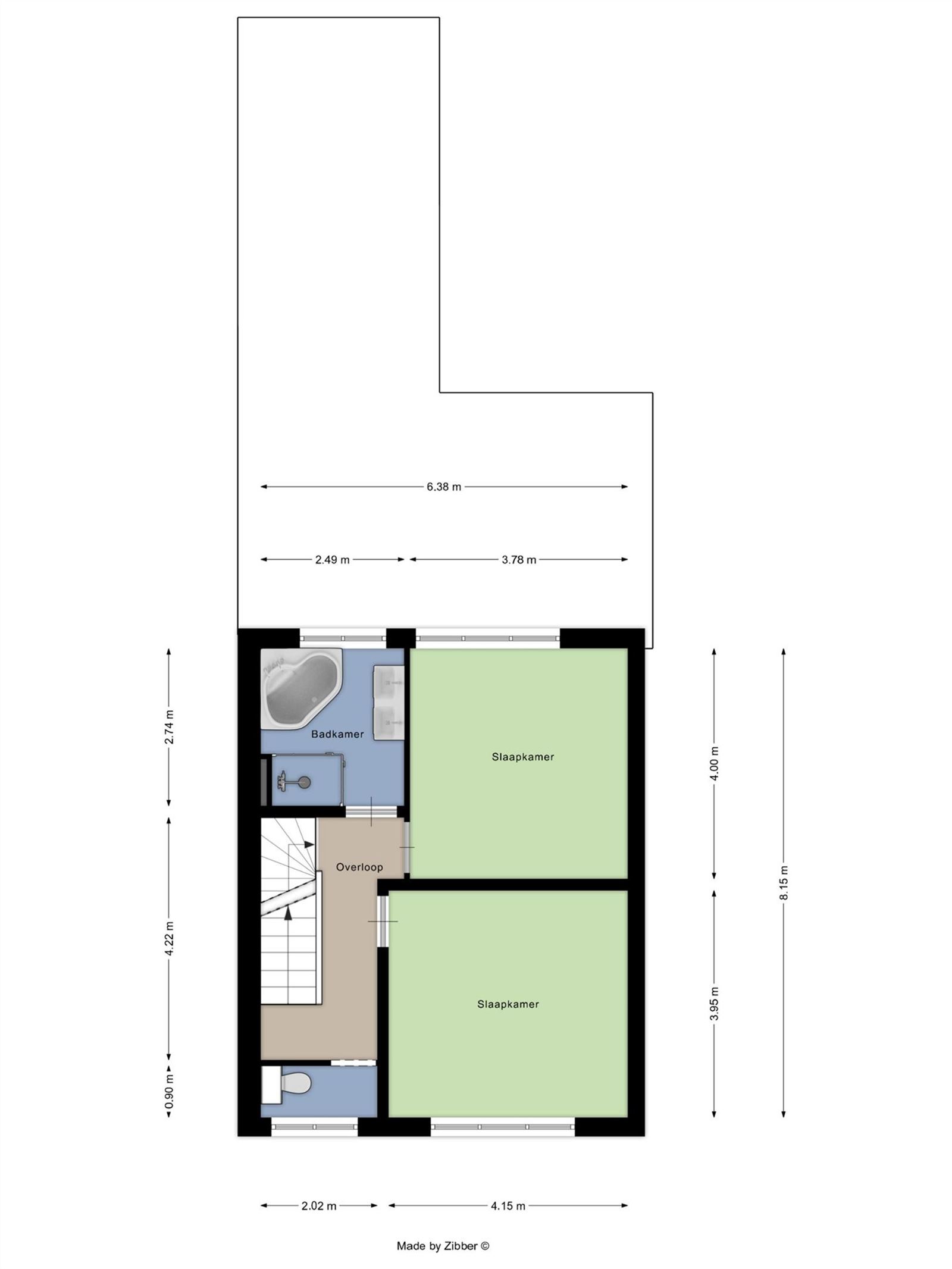
Binnenin beschikt de woning over vier volwaardige slaapkamers, ideaal voor een gezin met meerdere kinderen. De leefruimte is licht en ruim, en sluit naadloos aan op de keuken. Achteraan bevindt zich een ruime koer die uitkomt op een zuidgeoriënteerde tuin, waar je de hele dag door van de zon kunt genieten. Het perceel van de woning heeft een oppervlakte van 178 m². De woning zelf heeft een oppervlakte van maar liefst 211 m².
Praktisch gezien is de woning energiezuinig met een EPC-label C, waardoor er geen renovatieverplichting geldt. Het asbestinventarisattest is momenteel in aanvraag.
EK: niet conform het AREI. Wens je deze woning te bezoeken--> Interesse? Contacteer ons snel! 02 897 70 00 of info@multimmo.be
Kadastraal inkomen
€ 785
Aantal badkamers
1
Netto oppervlakte
211 m²
Living
16 m²
Grondoppervlakte
178 m²
Bouwjaar
1957
Verwarming
CV op gas
Orientatie Achtergevel
Zuid
Type dak
Zadeldak
Dakbedekking
pannen
Aansluiting aardgas
Ja
Aansluiting waterleiding
Ja
Keuken
Kasten met toestellen
Beglazing
Dubbel
Raamkozijn
pvc
Voorkooprecht mogelijk
Nee
Stedenbouwkundige vergunning verkregen
Ja
Dagvaarding en herstelvordering
Geen rechterlijke herstelmaatregel of bestuurlijke maatregel opgelegd
Bestemming
Woongebied
Risicozone voor overstromingen
Nee
Afgebakend overstromingsgebied
Nee
Afgebakende oeverzone
Nee
Datum asbestattest
2025-09-30 00:00:00
G-score
Klasse A
P-score
Klasse A
Unieke code
3671367
EPC
293 kWh/m²/jaar
Contacteer ons voor meer informatie of een bezoek ter plaatse.
INFO / BEZOEK AANVRAGENPrijs
€ 375.000
Kadastraal inkomen
€ 785
Adres
Ternatstraat 44
1740 TERNAT
Aantal slaapkamers
4
Aantal badkamers
1
Netto oppervlakte
211 m²
Living
16 m²
Grondoppervlakte
178 m²
Bouwjaar
1957
Deze woning combineert een goede en aangename woonomgeving met een uitstekende bereikbaarheid. Op slechts enkele minuten wandelen vind je het station, en dankzij de nabijgelegen invalswegen geniet je van een vlotte verbinding richting naar de omliggende gemeenten.
Binnenin beschikt de woning over vier volwaardige slaapkamers, ideaal voor een gezin met meerdere kinderen. De leefruimte is licht en ruim, en sluit naadloos aan op de keuken. Achteraan bevindt zich een ruime koer die uitkomt op een zuidgeoriënteerde tuin, waar je de hele dag door van de zon kunt genieten. Het perceel van de woning heeft een oppervlakte van 178 m². De woning zelf heeft een oppervlakte van maar liefst 211 m².
Praktisch gezien is de woning energiezuinig met een EPC-label C, waardoor er geen renovatieverplichting geldt. Het asbestinventarisattest is momenteel in aanvraag.
EK: niet conform het AREI. Wens je deze woning te bezoeken--> Interesse? Contacteer ons snel! 02 897 70 00 of info@multimmo.be
Kadastraal inkomen
€ 785
Aantal badkamers
1
Netto oppervlakte
211 m²
Living
16 m²
Grondoppervlakte
178 m²
Bouwjaar
1957
Verwarming
CV op gas
Orientatie Achtergevel
Zuid
Type dak
Zadeldak
Dakbedekking
pannen
Aansluiting aardgas
Ja
Aansluiting waterleiding
Ja
Keuken
Kasten met toestellen
Beglazing
Dubbel
Raamkozijn
pvc
Voorkooprecht mogelijk
Nee
Stedenbouwkundige vergunning verkregen
Ja
Dagvaarding en herstelvordering
Geen rechterlijke herstelmaatregel of bestuurlijke maatregel opgelegd
Bestemming
Woongebied
Risicozone voor overstromingen
Nee
Afgebakend overstromingsgebied
Nee
Afgebakende oeverzone
Nee
Datum asbestattest
2025-09-30 00:00:00
G-score
Klasse A
P-score
Klasse A
Unieke code
3671367
EPC
293 kWh/m²/jaar
