Kesterweg 64A
1755 KESTER
3
2
188 m2
Deze recent totaal gerenoveerde en instapklare driegevel woning bevindt zich op een prachtig perceel van 10 are 57 ca en geniet van een rustige, groene ligging in Kester. Dankzij de zuidgerichte oriëntatie baadt de woning de hele dag door in het natuurlijke licht.
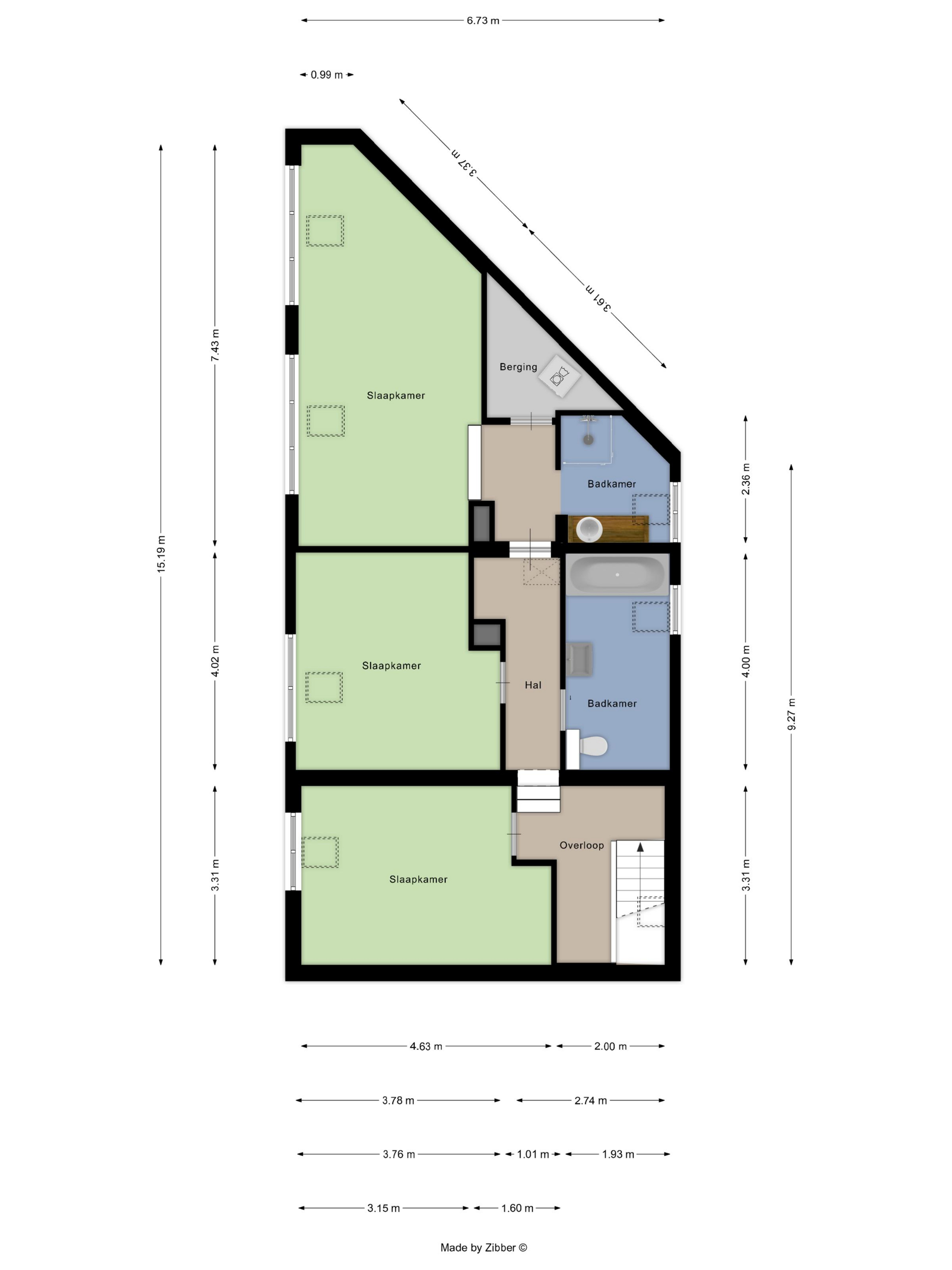
Bij het betreden van de woning kom je binnen in de inkomhal met een apart gastentoilet en een praktische berging. Aansluitend vind je de gezellige leefruimte en eetkamer, die in open verbinding staan met de volledig ingerichte keuken. Vanuit de keuken heb je een mooi zicht op de ruime tuin. Naast de woning zijn er twee autostaanplaatsen voorzien en via deze zijde biedt een poort toegang tot de tuin. Op de eerste verdieping bevinden zich drie ruime slaapkamers en twee comfortabele badkamers. De eerste badkamer is uitgerust met een ligbad, lavabo en toilet. De tweede badkamer beschikt over een douche en lavabo, deze is gelegen in de masterbedroom samen met een wasplaats. De tweede verdieping doet dienst als zolder en is bereikbaar via een uittrekbare trap. Verder is er een aparte technische berging waarin alle nieuwe technieken netjes ondergebracht zijn.
Extra troeven: een rustige ligging, instapklaar, voldoende parkeergelegenheid en energiezuinig dankzij de centrale verwarming via een lucht-waterwarmtepomp. EPC: 112 kWh/m²/jaar – label B. Bodemattest: geen bodemverontreiniging. Asbestattest en stedenbouwkundige inlichtingen zijn in aanvraag. Maak snel u afspraak op onze website: www.multimmo.be
Kadastraal inkomen
€ 843
Aantal badkamers
2
Netto oppervlakte
188 m²
Living
38 m²
Grondoppervlakte
1057 m²
Bouwjaar
1918
Verwarming
Warmtepomp met vloerverwarming
Orientatie Achtergevel
Zuid
Type dak
Zadeldak
Dakbedekking
pannen
Aansluiting waterleiding
Ja
Keuken
Volledig ingebouwd
Beglazing
Hoogrendement
Raamkozijn
pvc
Voorkooprecht mogelijk
Nee
Stedenbouwkundige vergunning verkregen
Ja
Dagvaarding en herstelvordering
Geen rechterlijke herstelmaatregel of bestuurlijke maatregel opgelegd
Bestemming
Woongebied met landelijk karakter
Risicozone voor overstromingen
Nee
Afgebakend overstromingsgebied
Nee
Afgebakende oeverzone
Nee
G-score
Klasse A
P-score
Klasse A
Unieke code
23024-G-3774/14/EP08541/A001/D01/SD001
EPC
112 kWh/m²/jaar
Contacteer ons voor meer informatie of een bezoek ter plaatse.
BEZOEK AANVRAGENPrijs
€ 549.000
Kadastraal inkomen
€ 843
Adres
Kesterweg 64A
1755 KESTER
Aantal slaapkamers
3
Aantal badkamers
2
Netto oppervlakte
188 m²
Living
38 m²
Grondoppervlakte
1057 m²
Bouwjaar
1918
Deze recent totaal gerenoveerde en instapklare driegevel woning bevindt zich op een prachtig perceel van 10 are 57 ca en geniet van een rustige, groene ligging in Kester. Dankzij de zuidgerichte oriëntatie baadt de woning de hele dag door in het natuurlijke licht.
Bij het betreden van de woning kom je binnen in de inkomhal met een apart gastentoilet en een praktische berging. Aansluitend vind je de gezellige leefruimte en eetkamer, die in open verbinding staan met de volledig ingerichte keuken. Vanuit de keuken heb je een mooi zicht op de ruime tuin. Naast de woning zijn er twee autostaanplaatsen voorzien en via deze zijde biedt een poort toegang tot de tuin. Op de eerste verdieping bevinden zich drie ruime slaapkamers en twee comfortabele badkamers. De eerste badkamer is uitgerust met een ligbad, lavabo en toilet. De tweede badkamer beschikt over een douche en lavabo, deze is gelegen in de masterbedroom samen met een wasplaats. De tweede verdieping doet dienst als zolder en is bereikbaar via een uittrekbare trap. Verder is er een aparte technische berging waarin alle nieuwe technieken netjes ondergebracht zijn.
Extra troeven: een rustige ligging, instapklaar, voldoende parkeergelegenheid en energiezuinig dankzij de centrale verwarming via een lucht-waterwarmtepomp. EPC: 112 kWh/m²/jaar – label B. Bodemattest: geen bodemverontreiniging. Asbestattest en stedenbouwkundige inlichtingen zijn in aanvraag. Maak snel u afspraak op onze website: www.multimmo.be
Kadastraal inkomen
€ 843
Aantal badkamers
2
Netto oppervlakte
188 m²
Living
38 m²
Grondoppervlakte
1057 m²
Bouwjaar
1918
Verwarming
Warmtepomp met vloerverwarming
Orientatie Achtergevel
Zuid
Type dak
Zadeldak
Dakbedekking
pannen
Aansluiting waterleiding
Ja
Keuken
Volledig ingebouwd
Beglazing
Hoogrendement
Raamkozijn
pvc
Voorkooprecht mogelijk
Nee
Stedenbouwkundige vergunning verkregen
Ja
Dagvaarding en herstelvordering
Geen rechterlijke herstelmaatregel of bestuurlijke maatregel opgelegd
Bestemming
Woongebied met landelijk karakter
Risicozone voor overstromingen
Nee
Afgebakend overstromingsgebied
Nee
Afgebakende oeverzone
Nee
G-score
Klasse A
P-score
Klasse A
Unieke code
23024-G-3774/14/EP08541/A001/D01/SD001
EPC
112 kWh/m²/jaar

woning
woning
horeca
garage
garage
onderg
bedrij
garage
appart
woning