Beukenlaan 4
1650 BEERSEL
4
1
242 m2
6 a 84 ca
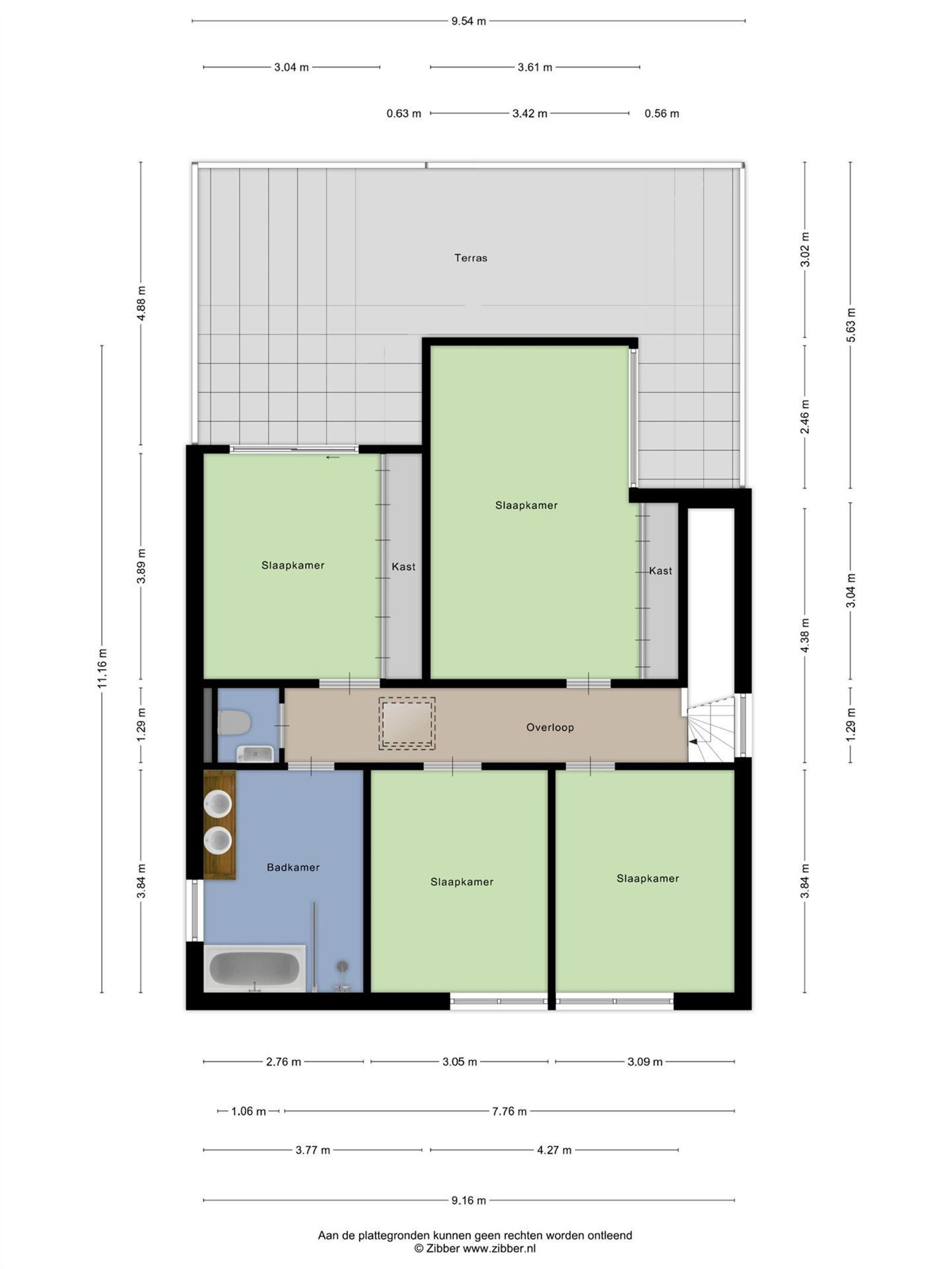
Welkom in deze prachtig afgewerkte en energie neutrale villa (2020) met 4 ruime slaapkamers op terrein van 6a 84ca gelegen te Dworp (Beersel). Deze strakke nieuwbouw met hoge kwaliteitsmaterialen omvat op de gelijkvloerse verdieping: inkomhal met vestiaire, WC, ruime en lichtrijke living, super ingerichte keuken met eethoek en toegang tot het terras en mooi aangelegde tuin. Op de eerste verdieping: nachthal, 4 ruime slaapkamers (12m²/13m²/19m²) waarvan 2 met terras, prachtig ingerichte badkamer met bad en douche. Bovenop een mooi aangelegde tuin en een zeer ruime garage (44m²) beschikt deze woning nog over een bijgebouw met alle nodige voorzieningen en bijgevolg heel veel mogelijkheden (zelfstandig bijberoep - mancave - ...). Deze energie neutrale woning, uitgerust met zonnepanelen + batterij, alarm + videosysteem alsook domotica in de hele woning en zijn omgeving stralen rust uit omringd door groen, nabij het centrum van Dworp. VIJFdubbele (anti-diefstal) beglazing - C.V. met warmtepomp/vloerverwarming en ventilatiesysteem D - regenwaterput van 7.500L met pomp. EPC: A + !! Deze woning van 2020 biedt heel wat mogelijkheden en zéér aangenaam wonen ! Verkoop onder registratierechten - contacteer ons snel via info@multimmo.be voor een bezoek !
Kadastraal inkomen
€ 3.587
Aantal badkamers
1
Garage
1
Netto oppervlakte
242 m²
Living
39 m²
Grondoppervlakte
6 a 84 ca
Bouwjaar
2020
Verwarming
Warmtepomp met vloerverwarming
Orientatie Achtergevel
Zuidwest
Type dak
Plat dak
Dakbedekking
andere
Keuken
Hyper-geïnstalleerd
Beglazing
Dubbel+driedubbel
Raamkozijn
alu
Comfort binnen
Alarm, Open Haard, Living parket, Parket, Zonnepanelen, Thuisbatterij
Comfort buiten
Camerabewaking, Laadpaal, Regenwaterput
Voorkooprecht mogelijk
Nee
Stedenbouwkundige vergunning verkregen
Ja
Dagvaarding en herstelvordering
Geen rechterlijke herstelmaatregel of bestuurlijke maatregel opgelegd
Bestemming
Woongebied
Risicozone voor overstromingen
Nee
Afgebakend overstromingsgebied
Nee
Afgebakende oeverzone
Nee
G-score waterinfo
Klasse C
P-score waterinfo
Klasse C
Unieke code
23003-G-OMV_2018140607/EP13934/A001/D01/SD001
EPC
-13 kWh/m²/jaar
Contacteer ons voor meer informatie of een bezoek ter plaatse.
INFO / BEZOEK AANVRAGENPrijs
€ 995.000
Kadastraal inkomen
€ 3.587
Adres
Beukenlaan 4
1650 BEERSEL
Aantal slaapkamers
4
Aantal badkamers
1
Garage
1
Netto oppervlakte
242 m²
Living
39 m²
Grondoppervlakte
684 m²
Bouwjaar
2020
Welkom in deze prachtig afgewerkte en energie neutrale villa (2020) met 4 ruime slaapkamers op terrein van 6a 84ca gelegen te Dworp (Beersel). Deze strakke nieuwbouw met hoge kwaliteitsmaterialen omvat op de gelijkvloerse verdieping: inkomhal met vestiaire, WC, ruime en lichtrijke living, super ingerichte keuken met eethoek en toegang tot het terras en mooi aangelegde tuin. Op de eerste verdieping: nachthal, 4 ruime slaapkamers (12m²/13m²/19m²) waarvan 2 met terras, prachtig ingerichte badkamer met bad en douche. Bovenop een mooi aangelegde tuin en een zeer ruime garage (44m²) beschikt deze woning nog over een bijgebouw met alle nodige voorzieningen en bijgevolg heel veel mogelijkheden (zelfstandig bijberoep - mancave - ...). Deze energie neutrale woning, uitgerust met zonnepanelen + batterij, alarm + videosysteem alsook domotica in de hele woning en zijn omgeving stralen rust uit omringd door groen, nabij het centrum van Dworp. VIJFdubbele (anti-diefstal) beglazing - C.V. met warmtepomp/vloerverwarming en ventilatiesysteem D - regenwaterput van 7.500L met pomp. EPC: A + !! Deze woning van 2020 biedt heel wat mogelijkheden en zéér aangenaam wonen ! Verkoop onder registratierechten - contacteer ons snel via info@multimmo.be voor een bezoek !
Kadastraal inkomen
€ 3.587
Aantal badkamers
1
Garage
1
Netto oppervlakte
242 m²
Living
39 m²
Grondoppervlakte
684 m²
Bouwjaar
2020
Verwarming
Warmtepomp met vloerverwarming
Orientatie Achtergevel
Zuidwest
Type dak
Plat dak
Dakbedekking
andere
Keuken
Hyper-geïnstalleerd
Beglazing
Dubbel+driedubbel
Raamkozijn
alu
Comfort binnen
Alarm, Open Haard, Living parket, Parket, Zonnepanelen, Thuisbatterij
Comfort buiten
Camerabewaking, Laadpaal, Regenwaterput
Voorkooprecht mogelijk
Nee
Stedenbouwkundige vergunning verkregen
Ja
Dagvaarding en herstelvordering
Geen rechterlijke herstelmaatregel of bestuurlijke maatregel opgelegd
Bestemming
Woongebied
Risicozone voor overstromingen
Nee
Afgebakend overstromingsgebied
Nee
Afgebakende oeverzone
Nee
G-score waterinfo
Klasse C
P-score waterinfo
Klasse C
Unieke code
23003-G-OMV_2018140607/EP13934/A001/D01/SD001
EPC
-13 kWh/m²/jaar

villa
woning
woning
woning
handel
handel
bouwgr
woning
landbo
landbo